Гидрошпонка тип ХО-УГЛ-120-4/25 (опалубочная для технол-их швов, угловая, ПВХ-П)
Артикул:
гкхоугл120425пвх
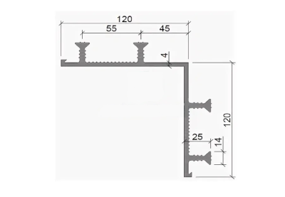
Гидроизоляционная шпонка тип ХО-УГЛ-120-4/25 (опалубочная для технологических швов, угловая, ПВХ-П) ТУ-5775-001-02476787-2016
Подробнее
Нашли дешевле?
Описание
Гидроизоляционная шпонка тип ХО-УГЛ-120-4/25 (опалубочная для технол-их швов, угловая, ПВХ-П) ТУ-5775-001-02476787-2016 применяется для герметизации технологических швов бетонирования оголовков свай фундаментных плит при строительстве гидротехнических, заглубленных и подземных сооружений.
Порядок установки описан в следующих документах: Технологический регламент ТР 186-07
Порядок установки описан в следующих документах: Технологический регламент ТР 186-07
Характеристики
|
Производитель
|
Гидро-гарант |
|
Назначение
|
технологические швы |
|
Материал
|
ПВХ-П |
|
Тип установки
|
Опалубочная |
Задать вопрос



