Гидрошпонка АКВАСТОП ХОС-УГЛ-120-2/25 (опалуб. для техн. швов угл. для сопряж. к сущ.конст, ПВХ-П)
Артикул:
асхосугл120225пвх
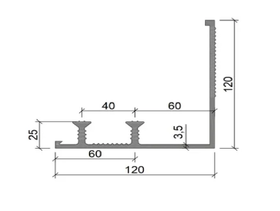
Гидроизоляционная шпонка АКВАСТОП ХОС-УГЛ-120-2/25 (опалубочная для технологических швов угловая для сопряжения к существующим конструкциям, ПВХ-П) ТУ 5772–001–58093526–11
Подробнее
Нашли дешевле?
Описание
Гидроизоляционная шпонка АКВАСТОП ХОС-УГЛ-120-2/25 (опалубочная для технологических швов угловая для сопряжения к существующим конструкциям, ПВХ-П) ТУ 5772–001–58093526–11 применяется для герметизации технологических швов бетонирования оголовков свай фундаментных плит при строительстве гидротехнических, заглубленных и подземных сооружений при сопряжении новых конструкций с существующими конструкциями. При монтаже к существующим конструкциям необходимо использовать специализированные прижимные планки, герметизирующие ленты и анкеры, не входят в комплект поставки, приобретаются отдельно.
Порядок установки описан в следующих документах: Технологический регламент ТР 186-07, СТО НОСТРОЙ 2.7.156-2014.
Порядок установки описан в следующих документах: Технологический регламент ТР 186-07, СТО НОСТРОЙ 2.7.156-2014.
Характеристики
|
Производитель
|
Аквабарьер |
|
Назначение
|
технологические швы |
|
Материал
|
ПВХ-П |
|
Тип установки
|
Опалубочная |
Задать вопрос



