Гидрошпонка АКВАСТОП ХО-УГЛ-160-6/25 (опалубочная для техн. швов угловая, ПВХ-П)
Артикул:
асхоугл160625пвх
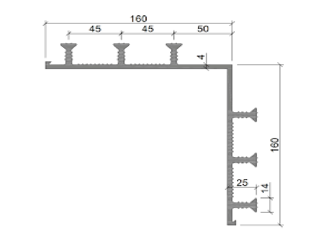
Гидроизоляционная шпонка АКВАСТОП ХО-УГЛ-160-6/25 (опалубочная для технологических швов угловая, ПВХ-П) ТУ 5772–001–58093526–11
Подробнее
Нашли дешевле?
Описание
Гидроизоляционная шпонка АКВАСТОП ХО-УГЛ-160-6/25 (опалубочная для технологических швов угловая, ПВХ-П) ТУ 5772–001–58093526–11 применяется для герметизации технологических швов бетонирования оголовков свай фундаментных плит при строительстве гидротехнических, заглубленных и подземных сооружений.
Порядок установки описан в следующих документах: Технологический регламент ТР 186-07, СТО НОСТРОЙ 2.7.156-2014.
Порядок установки описан в следующих документах: Технологический регламент ТР 186-07, СТО НОСТРОЙ 2.7.156-2014.
Характеристики
|
Производитель
|
Аквабарьер |
|
Назначение
|
технологические швы |
|
Материал
|
ПВХ-П |
|
Тип установки
|
Опалубочная |
Задать вопрос



